Nemovitosti
Dřevostavba ve Svaté
Finanční kalkulačka
Líbí se Vám tato nemovitost, ale nemáte v současné době dostatek finančních prostředků? Rádi Vám poskytneme možnost financování.
Částka: Kč | Úrok: % |
Doba splácení: let | Měs. splátka: Kč |
Dřevostavba ve Svaté
Prodej rodinného domu,
Nabízíme k prodeji rodinný dům v obci Svatá, v klidné slepé ulici,
s vlastním příjezdem a parkováním na pozemku. Dům byl kolaudován v roce
2014 a nabízí komfortní rodinné bydlení v kombinaci s klidem venkova a
dobrou dostupností do Prahy.
Nemovitost stojí na pozemku o velikosti 703 m², podlahová plocha domu
činí přibližně 146 m². Díky umístění ve slepé ulici zde není
tranzitní doprava, což zajišťuje soukromí, klid a bezpečné prostředí
pro děti.
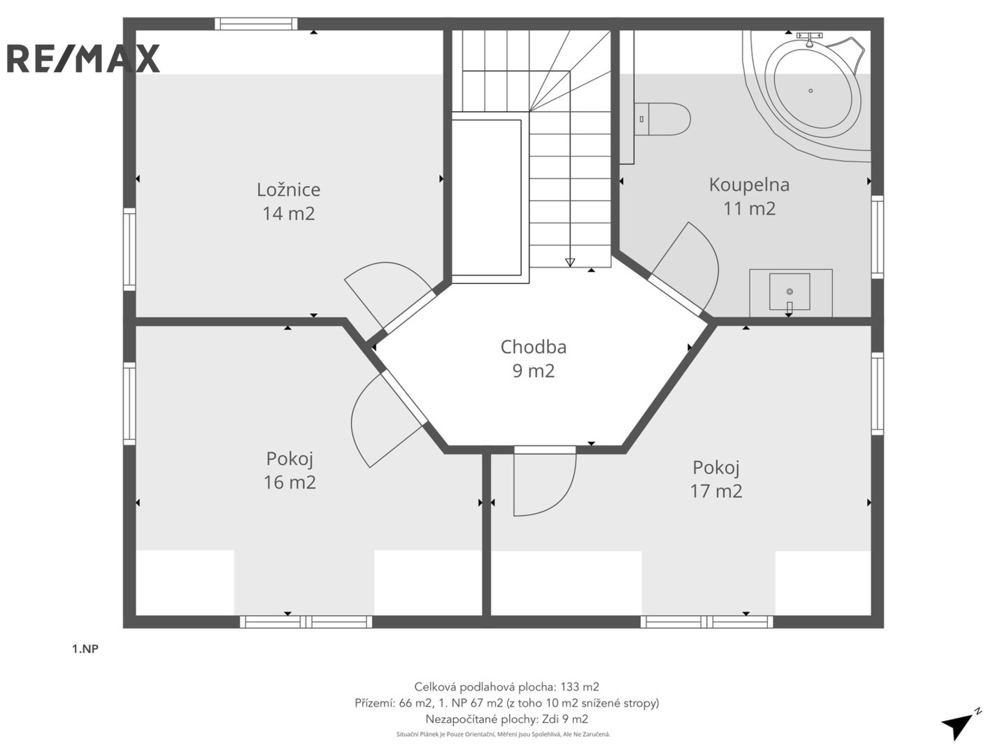
Dispozice a interiér
Dům je dispozičně řešen jako dvoupodlažní.
V přízemí se nachází vstupní zádveří s prostorem pro uložení bot a
oblečení, koupelna, technické zázemí a velká komora vhodná například
pro skladování potravin nebo zavařenin. Hlavní část přízemí tvoří
prostorný otevřený obytný prostor s kuchyní, jídelnou a obývacím
pokojem. Dominantou obývací části jsou kachlová kamna na dřevo, která
slouží jako plnohodnotný zdroj tepla a zároveň vytváří velmi příjemnou
atmosféru.
V horním patře se nachází tři samostatné pokoje a druhá koupelna. Patro
je řešeno jako klidová část domu, vhodná pro ložnice, dětské pokoje
nebo pracovnu.
Technické informace
Vytápění domu je zajištěno elektrickým kotlem, v přízemí je podlahové
topení, v horním patře radiátory. Dům je napojen na vodu a elektřinu.
Odpad je řešen domácí čističkou odpadních vod, přičemž na pozemku je
připravena možnost budoucího napojení na obecní kanalizaci. Plyn v obci
není.
Zahrada a exteriér
Zahrada je prakticky řešená a nabízí dostatek prostoru pro relaxaci
i rodinné aktivity. Velkým benefitem je pergola s venkovním ohništěm,
která rozšiřuje obytný prostor domu zejména v letních měsících.
Parkování je zajištěno přímo na pozemku pro dvě auta, příjezdová cesta
patří k domu.
Lokalita
Obec Svatá nabízí základní občanskou vybavenost včetně mateřské
školky, místní knihovny, která pořádá řadu akcí a kurzů pro děti
i dospělé, a sportovní vyžití jako fotbal, karate nebo badminton.
Majitelé oceňují velmi dobré sousedské vztahy a komunitní charakter
obce.
Dojezdová vzdálenost na Prahu – Zličín je přibližně 30 minut autem,
což z domu činí ideální kombinaci klidného bydlení a dostupnosti
města.
https://www.remax-czech.cz/…146-m2-svata

























