Nemovitosti
Pronájem příjemného bytu 2+kk v atraktivní lokalitě Vršovic
Pronájem příjemného bytu 2+kk v atraktivní lokalitě Vršovic
K dlouhodobému pronájmu nabízím příjemný byt o dispozici 2+kk a
celkové ploše 42 m². Byt je k nastěhování od 9. března a nachází se
v 2. nadzemním podlaží udržovaného cihlového domu s výtahem v klidné
a oblíbené části Vršovic, v ulici 28. pluku. Dům patří jednomu
majiteli, který o něj pečuje, což se pozitivně odráží na jeho stavu.
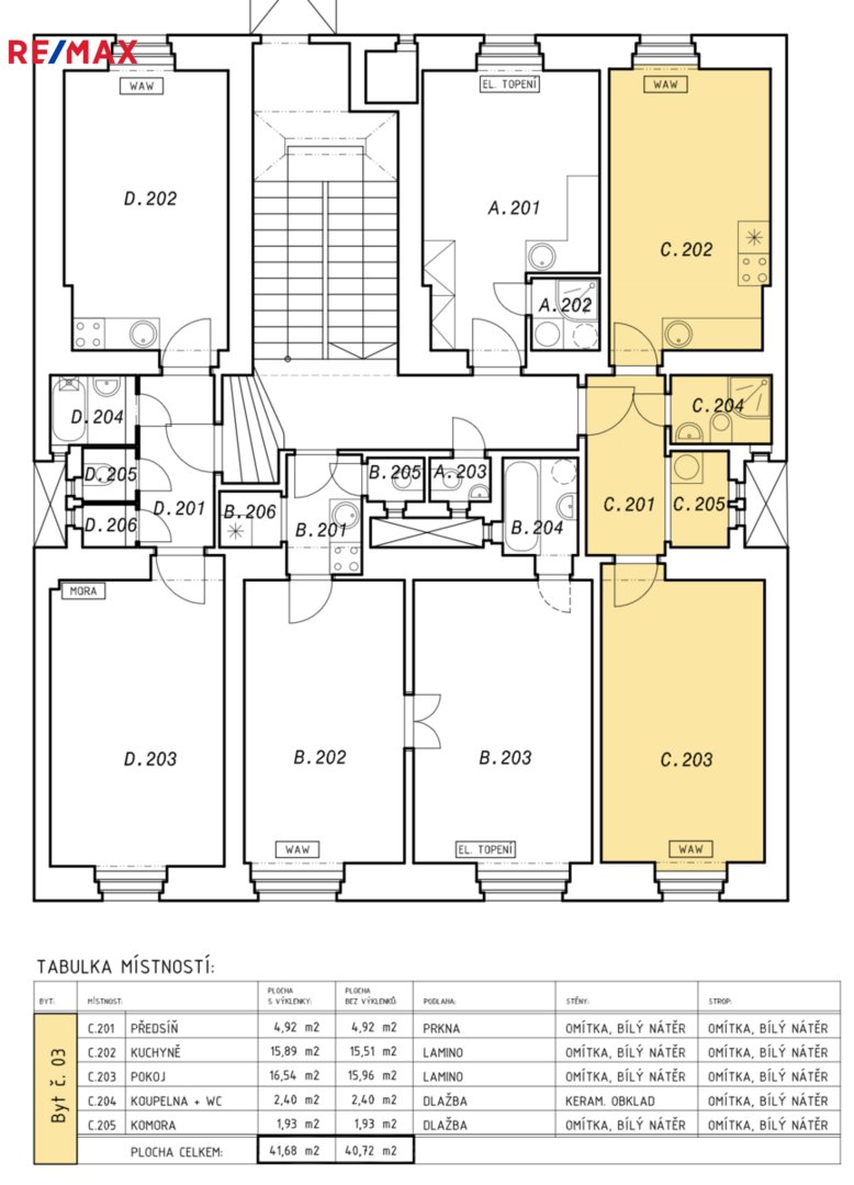
Dispozice bytu tvoří obývací pokoj s kuchyňskou linkou, ložnice, chodba,
koupelna, WC a komora. Obývací pokoj s kuchyňským koutem je orientován na
sever do dvora, ložnice má okna na jih do ulice. V kuchyni je k dispozici
lednice s mrazákem a elektrický sporák s troubou. V komoře se nachází
bojler, topení je lokální-plynové, typu WAW. Byt je nevybavený. Dům je
udržovaný ve velmi dobrém stavu.
Lokalita Vršovic nabízí ideální spojení pohodlného městského života a
klidného prostředí. V bezprostřední blízkosti se nachází řada
kaváren, restaurací a obchodů, stejně jako další služby potřebné pro
každodenní život. Milovníci zeleně ocení nedaleký park Heroldovy sady,
kam je to pouhých 6 minut chůze, nebo větší park Havlíčkovy sady
(Grébovka), který je vzdálený přibližně 15 minut pěšky. Díky
výborné dopravní dostupnosti je centrum Prahy snadno a rychle
dosažitelné.
Tento byt je skvělou volbou pro ty, kteří hledají pohodlné a stylové
bydlení v atraktivní pražské lokalitě.
Byt je k nastěhování od 9.3.2026. Pro další informace a domluvu
prohlídky prosím zareagujte online, ozvu se vám zpět v pracovních
dnech.
Nájemné: 20.500 Kč/měsíc
Poplatky za služby: 1.000 Kč/měsíc za 1 osobu
Energie přepisem na nájemníka.
Kauce ve výši 51.250 Kč
Provize RK ve výši jednoho nájmu
Praha 10
28. pluku 483/11

















