Nemovitosti
Venkovská chalupa u zámku Radenín – místo s atmosférou a potenciálem
Finanční kalkulačka
Líbí se Vám tato nemovitost, ale nemáte v současné době dostatek finančních prostředků? Rádi Vám poskytneme možnost financování.
Částka: Kč | Úrok: % |
Doba splácení: let | Měs. splátka: Kč |
Venkovská chalupa u zámku Radenín – místo s atmosférou a potenciálem
Radenín – poklidná jihočeská vesnice nedaleko Tábora. V jejím srdci
stojí historický zámek a jen pár kroků od něj tahle původní venkovská
chalupa – místo, kde se potkává klid, historie a kouzlo venkova.
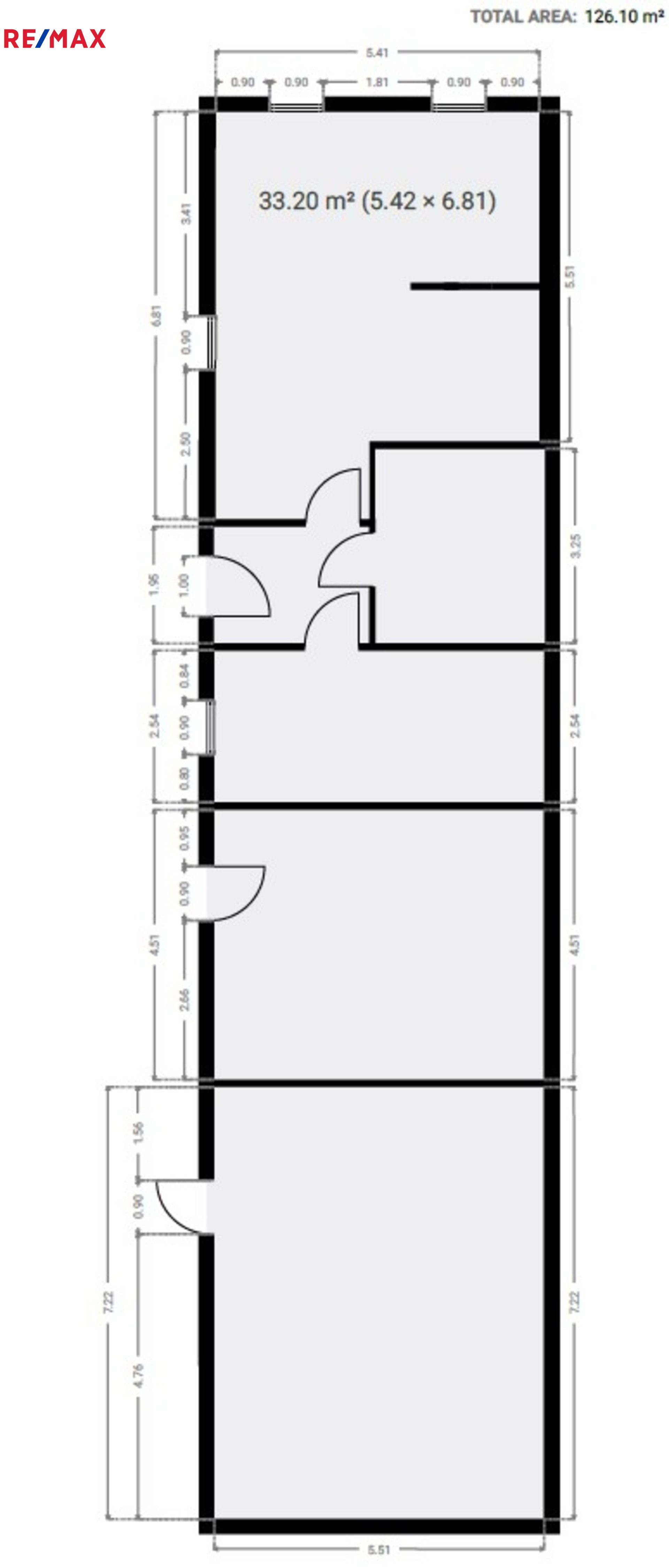
Dům se nachází na pozemku o celkové výměře 434 m², z toho 182 m²
tvoří zastavěná plocha. Nemovitost je v původním stavu a je určena ke
kompletní rekonstrukci – nabízí tak ideální příležitost vytvořit si
bydlení či rekreační sídlo přesně podle svých představ.
V domě je funkční elektřina, na pozemku se nachází nová vrtaná studna a
je zde připravená přípojka obecní kanalizace k napojení. V podkroví se
rozkládá prostorná půda s možností rozšíření obytné části,
k dispozici je sklep, stodola a další hospodářské prostory.
Na nemovitosti nevázne žádné věcné břemeno ani zástava a je možné ji
financovat hypotečním úvěrem, jehož vyřízení vám rádi pomůžeme
zajistit.
V bezprostřední blízkosti radenínského zámku, jehož historie sahá až
do 14. století, se tu mezi parkem, starými zdmi a venkovským tichem
vytváří jedinečná atmosféra, kterou jinde nenajdete. Díky tomu chalupa
nabízí nejen klid venkova, ale i dotek historie, který z ní dělá
skutečně výjimečné místo.
Ať už hledáte víkendové útočiště, nebo základ pro nové rodinné
bydlení – přijďte se podívat na prohlídku. Možná právě tady začne
váš nový příběh.

















