Nemovitosti
Prodej novostavby rodinné vily 6+kk Zátiší Lysolaje, Praha 6
Finanční kalkulačka
Líbí se Vám tato nemovitost, ale nemáte v současné době dostatek finančních prostředků? Rádi Vám poskytneme možnost financování.
Částka: Kč | Úrok: % |
Doba splácení: let | Měs. splátka: Kč |
Prodej novostavby rodinné vily 6+kk Zátiší Lysolaje, Praha 6
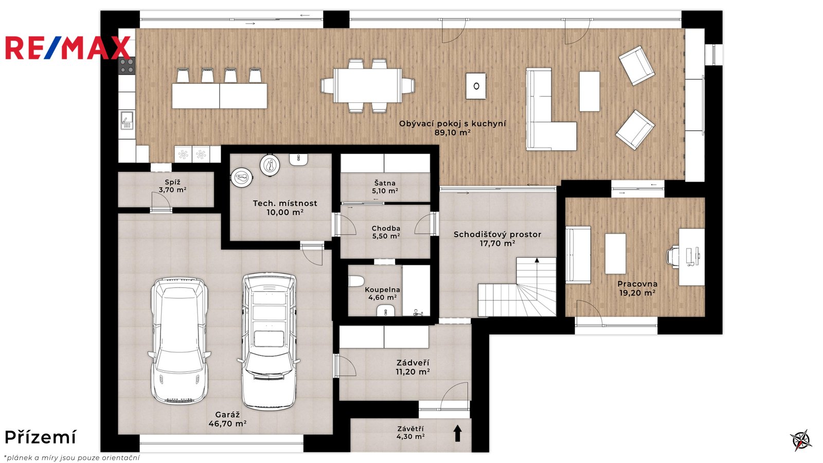
Nabízíme novostavbu luxusní vily 6+kk s užitnou plochou 310,1 m² na
rozlehlém pozemku o velikosti 1162 m². Dům se nachází v nové
rezidenční čtvrti Zátiší Lysolaje, která byla navržena ateliérem knesl
kynčl architekti s důrazem na klid, soukromí a harmonii s okolní
přírodou.
Dispozice
1. NP (212,8 m²):
- obývací prostor s kuchyňským koutem (89 m²), s přímým vstupem
na terasu a zahradu
- pracovna
- koupelna se sprchovým koutem a WC
- šatna, spíž
- technická místnost
- garáž pro 2 vozy s přímým vstupem do domu
2. NP (97,3 m²):
- hlavní ložnice se šatnou a soukromou koupelnou (sprchový kout, WC)
- 3 x ložnice
- koupelna s vanou a WC
- schodišťový prostor
Lokalita a okolí:
Přírodní park Šárka – Lysolaje, cyklostezky, turistické trasy, možnost
využití přívozu do pražské ZOO a Botanické zahrady nebo
cyklostezky vedoucí až na Okoř.
V místě je mateřská i základní škola, sportovní areál, fotbalové
hřiště. Nedaleko OC Bořislavka i mezinárodní školy, restaurace, kavárny
a obchody.
Dostupnost:
- metro Dejvická nebo Bořislavka – 10 min autem
- letiště Václava Havla – 20 min
- přímé spojení MHD do Dejvic
- snadný nájezd na Pražský okruh.
Přednosti vily:
- novostavba v nové moderní části Prahy 6
- stavba je projektována s nejnovějšími trendy současného bydleni
- velkorysá dispozice 6+kk
- Inteligentní systém ABB pro ovládání domu
- klimatizace
- krbová vložka s odkouřením na střechu
- hybridní tepelné čerpadlo systémem voda / vzduch s kombinací
dohřevu plynovým kondenzačním kotlem
- francouzská hliníková okna s trojskly, elektrické předokenní
hliníkové žaluzie
- velká zahrada s přípravou na zavlažovací systém a absolutním
soukromím
- bioklimatická pergola značky BRUSTOR
- nerezový bazén.
Současná fáze hrubé stavby umožňuje úpravy dispozice vily a
přizpůsobení Vašim představám.
Koupi vily lze financovat pomoci hypotečního úvěrů.
Pokud vás tato nabídka zaujala, kontaktujte mě – ráda vám ji osobně
představím.




































