Nemovitosti
Prodej rodinného domu 3+1, Hradec nad Svitavou
Finanční kalkulačka
Líbí se Vám tato nemovitost, ale nemáte v současné době dostatek finančních prostředků? Rádi Vám poskytneme možnost financování.
Částka: Kč | Úrok: % |
Doba splácení: let | Měs. splátka: Kč |
Prodej rodinného domu 3+1, Hradec nad Svitavou
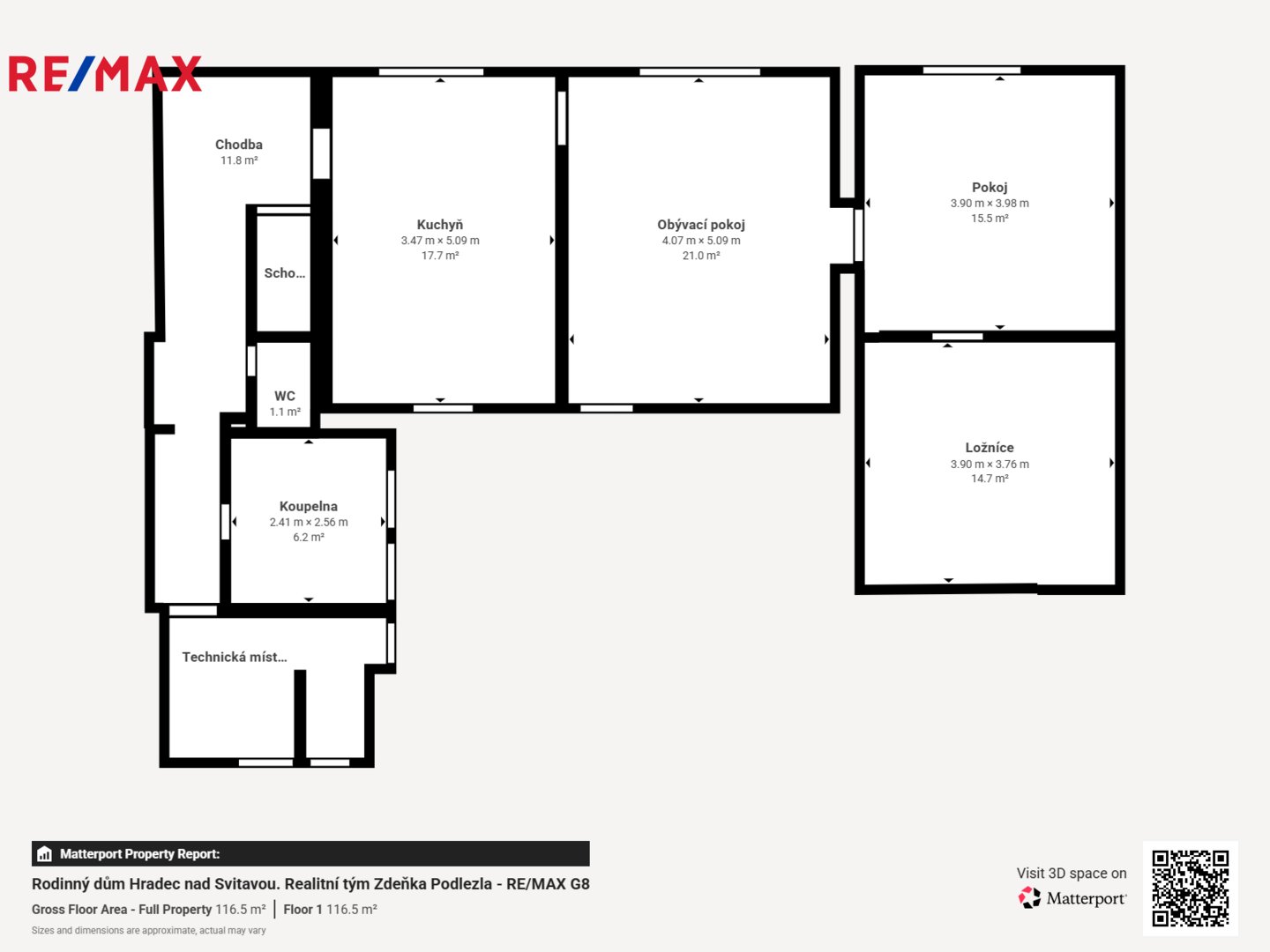
Nabízíme ke koupi rodinný dům o velikosti 3+1, v řadové zástavbě,
v klidné části obce Hradec nad Svitavou. Za domem je částečně
zastřešený dvorek a menší zahrádka s altánem.
Dům je přízemní, částečně podsklepený, s úložnou půdou.
Dispozice: kuchyně s jídelním prostorem, obývací pokoj s výstupem na
zastřešený dvorek, ložnice, pokoj, koupelna s vanou a sprchovým koutem,
samostatné WC, technická místnost/prádelna, chodba, vstup do sklepa, vstup
na půdu.
Nabízený dům byl v roce 2013 rekonstruován. Byly obnoveny všechny rozvody
(elektřina, voda, odpady, topení), omítky (částečně), podlahy
(částečně), zbudována nově koupelna a WC, osazeny zdroje vytápění a
vnitřní interiérové prvky. Okna jsou plastová s dvojskly, včetně
vstupních dveří.
Topení je ústřední plynové, případně je možné topit v krbových
kamnech v obývacím pokoji. V kuchyni a v koupelně je podlahové
vytápění. Ohřev vody je zajištěn elektrickým kombinovaným bojlerem.
Dům je možné obývat ihned, bez nutnosti dalších nákladných investic nebo
úprav.
Náklady na provoz domu jsou nízké.
Obec Hradec nad Svitavou disponuje plnou občanskou vybaveností. Je zde pošta,
obchody, lékař, základní i mateřská škola. Další obchodní a pracovní
příležitosti, úřady a lékařské služby je možné využít v blízkých
Svitavách, které jsou dostupné i vlakem a autobusem.


















